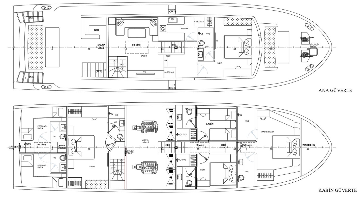
BELUGA
Techicial Specificatio
LOA :23,93
LWL : 22,86
B : 6,77
H : 3,43
DRAFT : 1,27
DEPLASMAN : 72,96 ton
SPEED : 12 Knot
ENGINE : 2x602 Hp CUMMINS
FUEL CAPASITY :5,2 M3
FRESH WATER CAPASITY :2,96 M3
BLACK WATER CAPASITY : 5,44 M3
PASSENGER CAPACITY : 10 passenger + 5 crew












Tekne tasarımı ve gemi mühendisliği hizmetleri
+90 533 541 09 32
© 2026 Viking. Tüm hakları saklıdır.
İletişim
📞
✉
Tekne projenizi birlikte değerlendirmek için bizimle iletişime geçin.
⚓

