LE SOLEIL
Techicial Specificatio
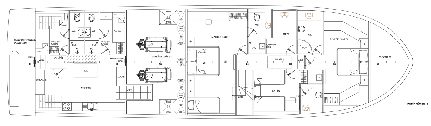
LOA :23,96
LWL : 22,21
B : 7,20
H : 3,80
DRAFT : 1,43
DEPLASMAN : 78,51 ton
SPEED : 12 Knot
ENGINE : 2x400 Hp VOLVO-PENTA
FUEL CAPASITY :3485 lt
FRESH WATER CAPASITY : 6600 lt
BLACK WATER CAPASITY : 7068 lt
PASSENGER CAPACITY : 9 passenger + 4 crew












Tekne tasarımı ve gemi mühendisliği hizmetleri
+90 533 541 09 32
© 2026 Viking. Tüm hakları saklıdır.
İletişim
📞
✉
Tekne projenizi birlikte değerlendirmek için bizimle iletişime geçin.
⚓

